Previous
Previous
Beach House
Next
Next
First page of a Cads document, contain directory of sheet, symbols, project and designer information and an actual location map.
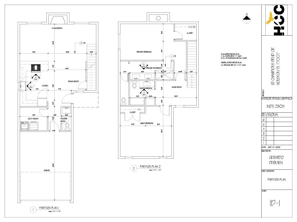
Refers to a detailed drawing or design that outlines the layout and arrangement of partitions within a space. These partitions serve various purposes, such as dividing a room into separate areas, providing privacy, controlling acoustics, or creating visual focal points.
Refers to a detailed layout or design that specifies the arrangement of furniture within a space. It is a crucial step in interior design and architectural projects. Furniture plans help visualize how furniture pieces fit into a room or building. They ensure efficient use of space, functionality, and aesthetics.
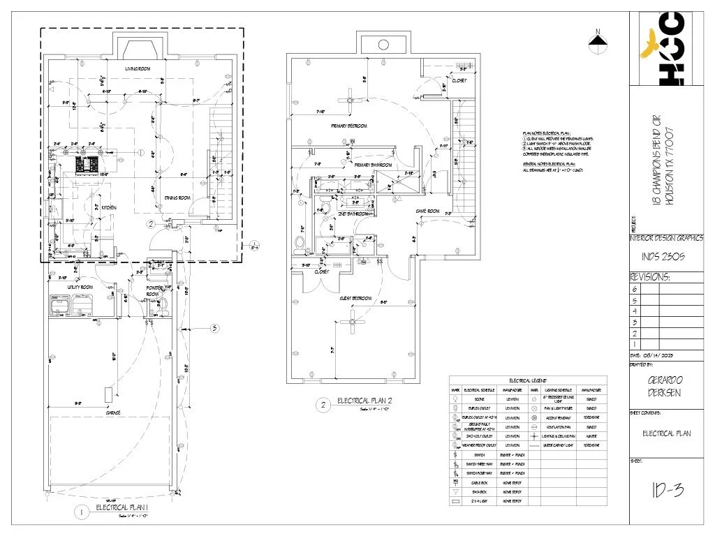
Refers to a detailed diagram or drawing that represents the electrical components, circuits, and connections within a building or structure. It is typically used by architects, engineers, and electricians during the design and construction phases. An electrical plan provides a visual representation of the electrical layout, including lighting fixtures, power outlets, switches, wiring, and distribution panels.
Refers to a especific area of the house that needs to be enlarge (zoom in) to b able to find more details of the area.
Refer to the visual representations of a building or object as seen from specific sides. These drawings provide a vertical view, showcasing the external appearance of the design.
Refers to a cut view across the cabinets to show more details.